Зачем нужен двухстоечный подъемник и когда без него не обойтись
Двухстоечный подъемник — основа любого СТО. На нём выполняют диагностику ходовой, замену масла, тормозное обслуживание, ремонт подвески. Это первое оборудование, которое покупают при открытии сервиса, и оно окупается за счёт пропускной способности: один пост с подъемником может обрабатывать 8–10 автомобилей в день, в зависимости от сложности работ.
В Казахстане подъемник должен выдерживать перепады напряжения в сети и работать с отечественным парком машин — от лёгких седанов до грузовиков. SILLAN делает подъемники с усиленной гидравликой и стальной конструкцией, которые держат нагрузку при нестабильном электроснабжении. Это критично для регионов вне крупных городов.
На что смотреть при выборе подъемника
- Грузоподъёмность: стандарт для СТО — 3–4 тонны. Это покрывает 95% легковых и коммерческих автомобилей. Если в планах обслуживание тяжёлых грузовиков, нужна модель от 5 тонн.
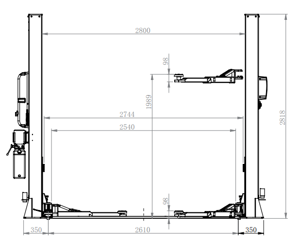
- Высота подъёма: минимум 1,8 метра — чтобы работать под днищем. Слишком высокие подъемники занимают больше места и медленнее поднимают машину.
- Синхронизация платформ: в качественных подъемниках обе платформы поднимаются одновременно и ровно. Перекос приводит к опасности и повреждению кузова.
- Ширина захвата: должна соответствовать расстоянию между опорными точками большинства авто в вашем регионе. На узкие захваты ставить машину сложнее.
Частые ошибки: дешевизна обходится дорого
Многие новички ищут самый дешёвый подъемник и попадают в ловушку. Оборудование с тонкой металлургией и слабой гидравликой теряет синхронизацию через 6–12 месяцев интенсивной работы. Результат: простой поста, стоимость ремонта (замена насоса, переточка валов) — 400–600 тысяч тенге, поиск мастера 2–3 недели. За это время вы потеряете клиентов и доход.
При выборе смотрите на толщину металла рамы, марку стали и гарантию производителя. Стенды сход-развала и другое диагностическое оборудование работают эффективнее, если подъемник держит машину стабильно — без люфтов и перекосов.
Монтаж и обучение — это не лишнее
Подъемник нужно правильно установить: якоря в полу, выравнивание платформ, настройка давления в гидросистеме. Неправильный монтаж приводит к перекосам и опасности для персонала. SILLAN включает в поставку монтаж, пусконаладку и обучение мастеров. Это значит, что оборудование с первого дня работает как надо, а ваша команда знает, как его эксплуатировать и когда вызывать сервис. Со сложными работами типа замены жидкостей это особенно важно — ошибка в эксплуатации стоит дорого.
